電子測量儀器是指采用電子技術測量電量或非電量的儀器和其他設備,電子測量儀器在日常生產生活中應用非常廣泛。因此,儀器應用環境多種多樣,要求儀器設備可以滿足各種不同環境下的測試需求,下面本文主要介紹不同環境溫度下如何對儀器進行進行溫度試驗,考核儀器設備不同環境溫度下的能否正常工作。
根據貯存條件溫度、極限條件溫度、工作范圍溫度三個條件,電子測量儀器一般情況可以分為三個不同測試組別,具體分組情況如下表1所示:

表1示:電子測量儀器試驗溫度組別

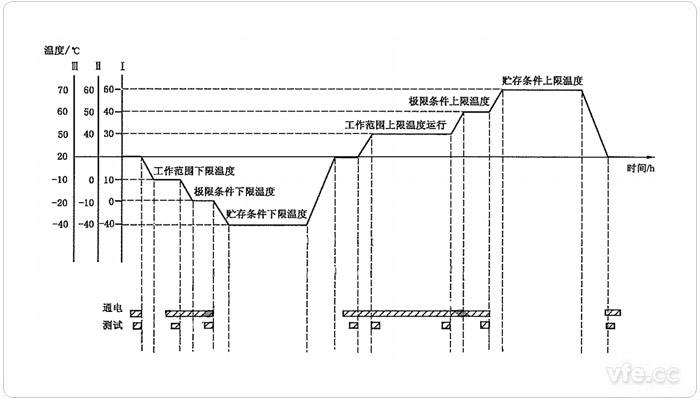
圖示1:溫度循環試驗時序圖
溫度試驗時,各溫度階梯(如圖示溫度循環試驗時序圖1所示)之間溫度變化的速率要求不小于0.5℃/min。且每一溫度階梯上,必須保證儀器達到溫度穩定狀態,才能進行測試,溫度穩定時間至少在1h。
電子測量儀器在貯存條件上、下限溫度試驗時,電源應當處于斷開位置,在高低溫箱內至少分別保持4h。
進行工作范圍溫度測試時,工作范圍上限溫度運行時間至少4h。
進行各項目溫度試驗時,高、低溫箱內的溫度應保持恒定均勻,溫箱內溫差不超過±2℃且溫箱容積至少應為受試儀器的3倍。在要求綜合考慮濕度原因影響時,可采取不違背溫度試驗目的的措施,如對高、低溫箱密封及注入干燥空氣等,以防止濕度的影響。
被試電子測量儀器的溫度試驗按照圖1所示溫度循環試驗時序圖進行試驗,試驗中溫度溫度時間、時序圖中具體時間、功能等參數參照產品技術標準執行。各項溫度測試項目設置及操作如下所述:
1. 基準工作條件溫度測試
在溫度為(20±2)℃的高、低溫箱內接通儀器電源,經預熱后進行各項性能特性測試;
將電源輸出的頻率保持在50Hz,電壓分別置于198V和242V及電源電壓保持220V,電源頻率分別設置于47.5Hz和52.5Hz幾種電源頻率與電壓狀態下分別至少保持15min,而后對被試電子測量儀器進行各項性能特性試驗。
2. 工作范圍下限溫度試驗
被試電子測量儀器電源先處于斷開位置,將高低溫箱內溫度降至時序圖中對應階梯的溫度數值,溫度穩定后,接通儀器電源,經預熱后,進行各項性能特性測試。
3. 極限條件下限溫度試驗
極限條件下限溫度測試時,被試儀器先處于通電狀態,使高低溫箱內溫度降至時序圖中對應階梯的溫度數值,溫度穩定后,檢查其性能特性;并且操作電源通斷三次,每次間隔時間不小于5min,考核其開機功能然后斷電。
4. 貯存條件下限溫度試驗
貯存條件下限溫度試驗時,被試儀器電源處于斷開位置,使高低溫箱內溫度降至時序圖中對應階梯溫度數值,至少保持4h。
5. 基準工作溫度條件試驗
基準工作溫度條件試驗,先調節高低溫箱內溫度升到基準溫度(20±2)℃,溫度穩定后,接通儀器電源,預熱后,進行性能特性測試。為保證被試電子測量儀器不至凝水,影響試驗結果,可降低溫度回升速率或采取其他不違背溫度試驗項目的措施。
6. 工作范圍上限溫度試驗
進行工作范圍上限溫度試驗時,儀器電源處于接通位置,使高低溫箱內的溫度升至時序圖中對應階梯的溫度數值,溫度穩定后,進行一次性能特性測試。在工作范圍上限溫度下,運行試驗保持至少4h,試驗末尾再進行一次性能特性測試。
7. 極限條件上限溫度試驗
極限條件上限溫度試驗時,被試電子測量儀器處于通電狀態,調節高低溫箱內溫度升到時序圖中對應階梯的溫度數值,溫度穩定后,檢查其功能,然后斷電。
8. 貯存條件上限溫度試驗
進行貯存條件上限溫度試驗時,被試儀器電源處于斷開位置,使高低溫箱內的溫度升至時序圖中對應階梯的溫度數值,在箱內至少保持4h。
9. 基準工作溫度條件試驗
基準工作溫度條件試驗時,調節高低溫箱內溫度降至其基準溫度(20±2)℃,溫度穩定后,接通儀器電源,經預熱后,進行性能特性測試。
電子測量儀器溫度試驗后必須對被試儀器外觀進行目測檢查,被試設備應當無銹蝕、裂紋、涂覆層剝落等損傷;文字和標志應清晰;控制機構應靈活;緊固部位應無松動;塑料件應無起泡、開裂、變形以及灌注物應無溢出現象。且各個試驗條件下的被試儀器性能特性應符合產品標準的規定。
上一篇:銀河功率分析儀選型指南
下一篇:電子測量儀器濕度試驗